服务创造价值、存在造就未来
项目介绍:中骏·雍景台,中国地产50强中骏集团倾城开发打造,项目定址于湾区岭南文旅中心门户,以入主西樵山下、听音湖畔绝版商住地,封藏国家5A级山湖腹地RBD经济区生活,第一时间坐享政府发展红利。建面约88-125㎡山湖美宅,承袭景字系精英血统,山湖大美、城市教育、轨道资源,左眼繁华,右眼繁花。项目紧邻佛山地铁2号线西樵山站(规划),近享文旅RBD繁华配套与珠三角新干线机场(规划),坐拥樵山文化中心、黄飞鸿馆、听音广场、观心小镇、宋城演艺。幼-小-中全龄学府环伺,且自配建大型社区花园、儿童乐园、健康跑道、长者活动中心及卫生服务站,营造都市圈层美好人居。一山一湖,一城繁华尽在中骏·雍景台

行业背景:房地产行业项目很多项目对分销管理很随意,没有建立完善的内控管理机制,比如客户界定的流程不清晰,甚至有漏洞,过程缺乏监控,导致抢客、飞单频繁出现,影响销售通过人脸识别判客加快去化提高周转,降低费用,提升房企经营利润。

房地产行业智慧案场风控管理诉求:借力渠道实现快速去化,数字化风控管理挽回利润损失。

行业解决方案:来访人像自动采集、人证验证快速绑定客户与人像、结佣前系统筛查标记风险成交客户、结合视频快速确定是否飞单——闭环、高效、准确。

上海艾社核心优势:艾社信息通过2年的时间建立全国覆盖21个省级本地化服务能力,建立4大核心优势:三合一、实施流程以规范化、服务标准化,累积交付700+智慧空间项目经验。

上海艾社智慧案场硬件清单:抓拍机内置电动变焦镜头,操作便易,变焦过程平稳。对运动人脸进行检测、跟踪、抓拍、评分、筛选,输出的人脸抓图到服务端进行解析,同时也也可以支持NVR录像机。

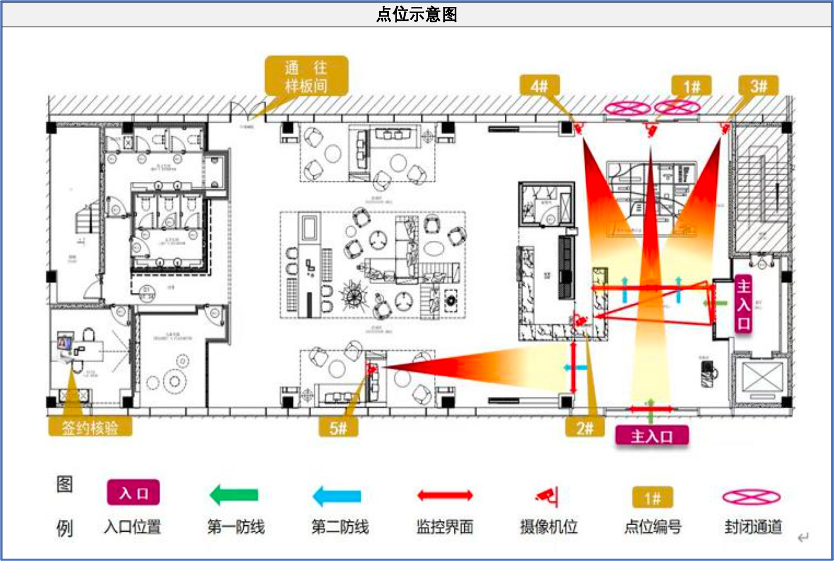
上海艾社工勘方案:艾社信息定位房地产行业智慧案场与智慧社区的解决方案与实施运维提供商,全面推动房地产行业场景智能化中落地,提升应用保障,助力客户打造现代应用智能空间,引领行业智能化发展。根据工程现场勘察情况,以及摄像机安装技术要求进行点位设计,并在现场平面图上更新计划点位信息;
